Продам загородную недвижимость в Крыму

Загородная недвижимость @addition_city
Цена 9 700 000 р.
Объект недвижимости Дом
Загородный населенный пункт село Полюшко
Район Севастополь
Адрес улица Дмитрия Мельниченко
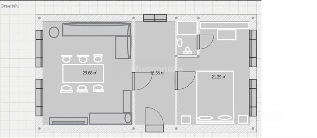
Площадь 150 м2
О доме Двухэтажный дом площадью 150 м² — надёжная основа для вашего будущего . Просторная жилая площадь 70 м² и большая кухня 29 м² подойдут для семейных ужинов и встреч с друзьями. Дом требует ремонта — отличная возможность реализовать свой дизайн и сэкономить на лишних опциях. Планировка Три изолированные комнаты обеспечат приватность каждому члену семьи. Санузел расположен в доме, продуманная схема этажей создаёт удобство перемещения и зонирования пространства. Коммуникации Подведено электричество, отопление электрическое — тёплый дом в любой сезон. Водоснабжение центральное, канализация — септик. Газ проходит по границе участка, что позволит при желании подключиться без сложных согласований . Участок и парковка Участок 4 сотки категории ИЖС — можно строить, расширять и благоустраивать. На территории предусмотрено парковочное место для вашего авто . Спокойное окружение и удобный подъезд. Юридические детали Категория земли — ИЖС, возможна покупка в ипотеку. Документы готовы к сделке, быстрый выход на оформление. Отличный вариант для тех, кто ищет дом с потенциалом и ценит качество. Звоните прямо сейчас, что бы договориться о просмотре и выяснить все детали!
Объявление № 23659832
Дата подачи:
22 ноября 2025 г. 3:25
Дата обновления:
22 ноября 2025 г. 3:25
Просмотров 1 Хотите продать быстрее?

Продавец
Агентство недвижимости:
Константин Евгеньевич
email: 89787180110@chersonese.ru
Показать номер телефона
Пожаловаться
Комментарии:
Добавить