Продам загородную недвижимость в Крыму

Загородная недвижимость @addition_city
Цена 9 500 000 р.
Объект недвижимости Дом
Загородный населенный пункт Севастополь
Район Севастополь
Адрес территория СТ Технолог
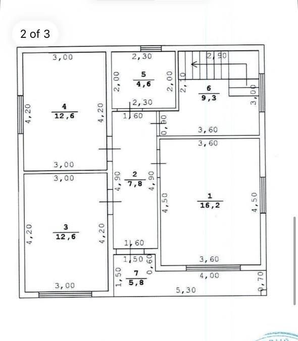
Площадь 120 м2
Продается новый дом 120 кв.м. от застройщика. Подходит под семейную, It ипотеку от 6% годовых. Дом с видом на море. Море видно уже с террасы вашего дома на 1 этаже. Участок ровный 4 сотки в СТ "Технолог". Огорожен, откатные ворота. В СТ два заезда с автоматическими воротами с ул. Дениса Ракицкого и Монастырского шоссе. Планировка: на 1 этаже просторная кухня-гостиная с выходом на террасу, 2 спальни, санузел, лестница расположена в 3 комнате (можно использовать ее под гардеробную, котельную). 2 этаж мансарда свободной планировки. Предчистовая отделка на первом этаже: теплые водяные полы, разведена электрика. Возможен ремонт под ключ. Коммуникации: электричество 15 кВт, вода из скважины СТ подключены, септик установлен. Дом уже построен, оформлен. Возможна любая ипотека и материнский капитал. Юридическое сопровождение включено в стоимость. Звоните, с удовольствием отвечу на ваши вопросы.
Объявление № 22956189
Дата подачи:
19 июля 2025 г. 7:15
Дата обновления:
19 июля 2025 г. 7:15
Просмотров 44 Хотите продать быстрее?

Продавец
Агентство недвижимости:
Светлана Владимировна
email: 89788576629@chersonese.ru
Показать номер телефона
Пожаловаться
Комментарии:
Добавить