Продам загородную недвижимость в Крыму

Загородная недвижимость @addition_city
Цена 7 600 000 р.
Объект недвижимости Дом
Загородный населенный пункт Севастополь
Район Севастополь
Адрес улица 2-я Линия
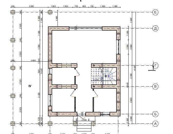
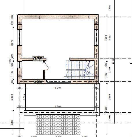
Площадь 113,5 м2
Об объекте Продаётся двухэтажный кирпичный дом общей площадью 113,5 кв.м. Просторная планировка включает 4 комнаты, уютную кухню и светлые жилые зоны. Жилая площадь около 80 кв.м. Толстые стены и монолитный каркас обеспечивают надежность и хорошую теплоизоляцию. Дом имеет возможность перепланировок и готов к дальнейшему доведению под ваш стиль. Установлены энергосберегающие окна, и входные металлические двери. Площадь участка, планировка и парковка Участок 5 соток, на котором возможна дальнейшая планировка. Удобное размещение парковочного места рядом с домом. В доме есть возможность сделать санузел внутри, что обеспечивает комфорт повседневной жизни. Светлая гостиная плавно соединена с кухней, что удобно для семейного отдыха и приема гостей. Коммуникации и инженерия Водоснабжение — скважина, канализация — септик, электричество — есть. Отопление — предусматривает установку твердотопливного котёла. Газ — перспектива подключения в будущем. Заведен интернет.  Особенности покупки Ипотека возможна. Ремонт требуется — подготовьте план преображения под ваш стиль и сроки. Дом подходит для семьи, ищущей простор и автономию. Звоните прямо сейчас, что бы договориться о просмотре и выяснить все детали!
Объявление № 23435681
Дата подачи:
19 октября 2025 г. 3:13
Дата обновления:
19 октября 2025 г. 3:13
Просмотров 22 Хотите продать быстрее?

Продавец
Агентство недвижимости:
Виктория Николаевна
email: 89787679565@chersonese.ru
Показать номер телефона
Пожаловаться
Комментарии:
Добавить