Продам загородную недвижимость в Крыму

Загородная недвижимость @addition_city
Цена 8 400 000 р.
Объект недвижимости Дом
Загородный населенный пункт Севастополь
Район Севастополь
Адрес улица Черноморская
Площадь 110 м2
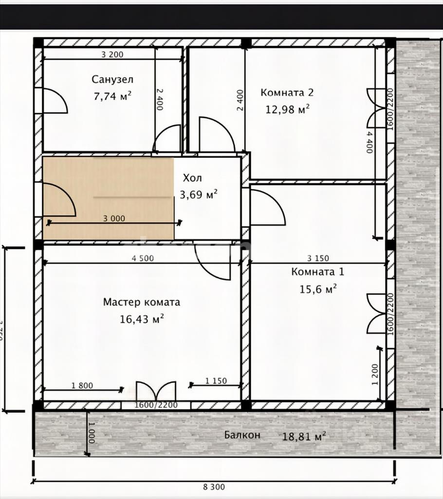
Продажа нового двухэтажного дома 120 м² с шикарным видом на участке 4 сотки! Семейная ипотека, наличные, мат.капитал, все виды расчёта! Основные характеристики дома: • Общая площадь дома: 140м² • Материал стен: газоблок • Монолитные колоны 200/400 + армопояса • Перекрытия: железобетон • Кровля битумная, утепленная 200мм • Отмостка по периметру • Остекления • Перегородки • Газгольдер Планировка: 1 этаж: кухня-гостиная - 25 кв.м, гостевая (гардеробная) - 10 кв.м, котельная - 3,8 кв.м, санузел - 7 кв.м, хол - 7,6 кв.м 2 этаж: мастер спальня (спальня с санузлом) - 16,5 кв.м, комната -13 кв.м, комната - 15,6 кв.м, санузел - 7,7 кв.м, балкон - 17 кв.м. Участок и придомовая территория: 4 сотки, ровный, правильной формы. Установлены откатные ворота. Большая придомовая территория. Парковочное место для автомобиля на участке. Звоните! Быстрый показ и выход на сделку!
Объявление № 24006581
Дата подачи:
9 апреля 2026 г. 0:39
Дата обновления:
9 апреля 2026 г. 0:39
Просмотров 1 Хотите продать быстрее?

Продавец
Агентство недвижимости:
Анна Геннадьевна
email: 89788576906@chersonese.ru
Показать номер телефона
Пожаловаться
Комментарии:
Добавить