Продам сад в Крыму

Сад
Цена 12 500 000 р.
Садовое товарищество Севастополь
Площадь дома 117 м2, участка 5,8 м2
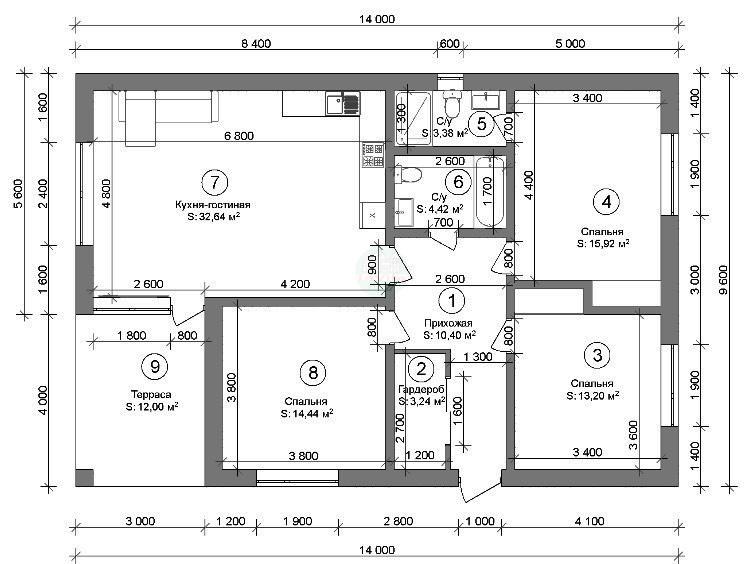
Объект №5311. <br> <blockquote>Представляем к продаже современный дом в стиле хай-тек, расположенный в престижном Гагаринском районе Севастополя, по адресу: ул. Лесхозная, 71/9в. Объект идеально подходит для приобретения с использованием семейной или IT-ипотеки, а также других форм расчетов, включая материнский капитал, сертификаты и наличные средства.<br><strong style="mso-bidi-font-weight:normal">О сновные характеристики:</strong>- Площадь дома: 117 кв.м.<br>- Материал стен: Натуральный ракушечник, строительство выполнено в строгом соответствии с требованиями СНиП, что обеспечивает высокую надежность и долговечность конструкции.<br>- Участок: 4 сотки, огорожен забором из металлопрофиля, с парковкой и дорожками. Идеально подходит для создания ландшафтного дизайна или зоны отдыха.<br><strong style="mso-bidi-font-weight:normal">С остояние при передачи объекта:</strong>Дом полностью готов к внутренней отделке, что предоставляет покупателю возможность реализовать индивидуальные дизайнерские решения. Выполнена предчистовая отделка: стены оштукатурены, установлен теплый водяной пол во всех помещениях, обеспечивающий комфортный микроклимат круглый год. Дополнительно установлен современный двухконтурный газовый котел Baxi и газгольдер на 900 литров, что гарантирует автономность и экономичность системы отопления.<br><strong style="mso-bidi-font-weight:normal">П ланировка:</strong>- Кухня-гостиная: Просторная зона площадью 32 кв.м., идеальная для семейных и дружеских мероприятий.<br>- Спальни: Три спальни площадью 16, 13 и 14 кв.м., каждая из которых может быть оформлена в соответствии с предпочтениями владельца.<br>- Санузлы: Два санузла – отдельный в мастер-спальне (3,64 кв.м.) и просторный санузел (4,68 кв.м.), где возможно установить ванну.<br>- Прихожая: 11 кв.м. с гардеробной зоной (3,85 кв.м.).<br>- Терраса: 12 кв.м., на террасу выведен теплый пол, даже в холодное время года это будет идеальным местом для отдыха семьи.<br><strong style="mso-bidi-font-weight:normal">К ачество постройки:</strong>- Фундамент: Ленточный с монолитной плитой толщиной 20 см, усилен монолитным каркасом, колоннами и сейсмопоясом, что обеспечивает высокую устойчивость к сейсмическим воздействиям.<br>- Стены: Ракушечник с утеплением пенопластом 50 мм и камешковой штукатуркой.<br>- Крыша: Утеплена минеральной ватой 150 мм, покрыта металлопрофилем, что гарантирует долговечность и теплоизоляцию.<br><strong style="mso-bidi-font-weight:normal">К оммуникации:</strong>- Водоснабжение: скважина.<br>- Канализация: септик.<br>- Электричество: 3 фазы, мощность 15 кВт.<br>- Окна: <span style="line-height: 115%; font-size: 11pt;" calibri","sans-serif";mso-ascii-the me-font:minor-latin;mso-fareast-font-family:=" ;" calibri;mso-fareast-theme-font:minor-latin;mso-han si-theme-font:minor-latin;="" mso-bidi-font-family:"times="" new="" roman";mso-bidi-theme-font:minor-bidi;=" " mso-ansi-language:ru;mso-fareast-language:en-us;ms o-bidi-language:ar-sa"="">трёх к амерные, ПВХ с ламинированным покрытием, стеклопакеты с мультифункциональным стеклом Solar, с дополнительной шумоизоляцией.</span>- Отопление: теплый водяной пол во всех комнатах, дополнительный радиатор в кухне-гостиной.<br><strong style="mso-bidi-font-weight:normal">И нфраструктура:</strong>Дом расположен вблизи СТ «Южный», с удобной транспортной доступностью. Асфальтированная дорога подходит к участку, остановка общественного транспорта находится в 130 метрах.<br><strong style="mso-bidi-font-weight:normal">Д ополнительные преимущества:</strong>- Участок полностью подготовлен для комфортного проживания: залита парковка, установлены ворота и калитка.<br>- Возможность использования различных форм расчетов, включая ипотечные программы.<br><strong style="mso-bidi-font-weight:normal">О бъект готов к покупке! Звоните для организации показа и получения дополнительной информации.</strong></blockquote>
Объявление № 22681419
Дата подачи:
29 июня 2025 г. 1:53
Дата обновления:
29 июня 2025 г. 1:53
Просмотров 26 Хотите продать быстрее?

Продавец
Агентство недвижимости:
Виталий
email: invita@chursini.ru
Показать номер телефона
Пожаловаться
Комментарии:
Добавить