Продажа Однокомнатная квартиры, Ленина, 32Б, Севастополь

Однокомнатная квартира по ул. Ленина, 32Б Севастополь
Город Севастополь
Цена 7 500 000 р. (200 000 р./м2)
Подать заявку на ипотеку
Район Ленинский
Адрес Ленина, 32Б
Этаж 2/2
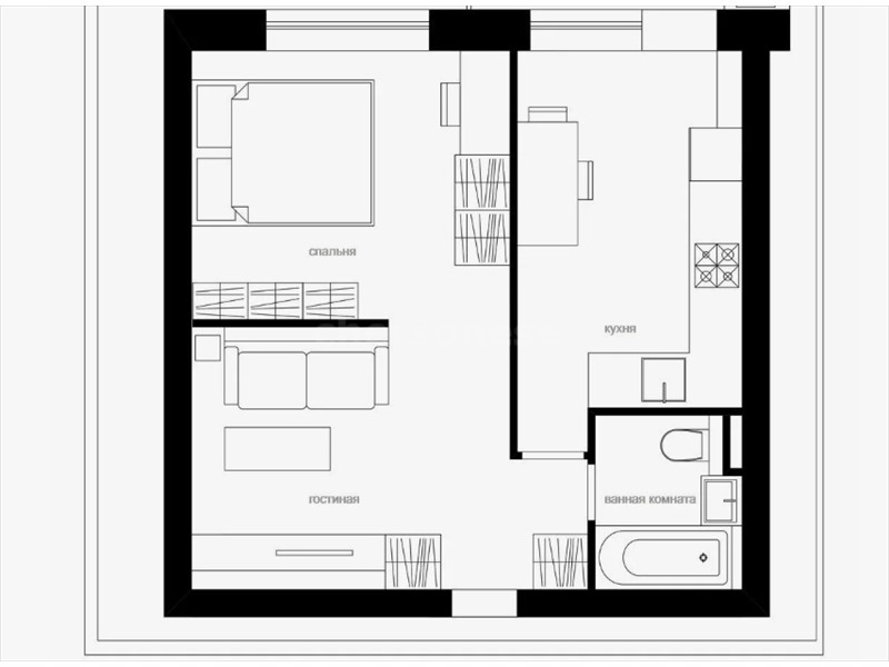
Площадь общая 37,5 м2, жилая 22 м2, кухни 8 м2
Кол-во комнат Однокомнатная
Продаётся уютная однокомнатная квартира с продуманной планировкой в центре города на улице Ленина.  Общая площадь 37,5 кв.м, кухня 8 кв.м, жилая 22 кв.м. Ремонт косметический, квартира готова к въезду и при необходимости легко подойдёт для адаптации под стиль и требования нового хозяина. Наличие мебели позволяет заехать без задержек, а благодаря изолированной комнате и светлым окнам ощущается простор и комфорт. Санузел совмещённый, высота потолков 3,05 м. создаёт ощущение свободы и воздушности. Вид из окна во двор добавляет уюта и спокойствия в ежедневной жизни. Площадь и планировка Изолированная комната обеспечивает приватность и удобство размещения спального места, рабочей зоны и зоны отдыха. Кухня отделена и имеет достаточно пространства для полноценной обеденной зоны. Коммуникации и планировка учитывают потребности современного города: практичное использование пространства, разумная зона хранения и возможность обновления интерьера под стиль владельца. Дом, этажность и характеристики здания Дом сталинского типа, год постройки 1917, материал стен — блочный. Этажность 2, квартира находится на последнем втором этаже. Центральное отопление сохраняет комфорт в холодные периоды года. Инфраструктура и условия парковки За шлагбаумом во дворе организована парковка, что обеспечивает безопасность и удобство для жителей и гостей. Вид во двор способствует спокойной обстановке в дневное и вечернее время. Наличие мебели и косметический ремонт позволяют быстро начать комфортное проживание и адаптацию под потребности арендатора или собственника. Самый центр города!!! Дом уютно расположен во дворе, тихо, зелено и спокойно. Условия сделки и просмотр Возможна ипотека — продажа с использованием банковского кредита. Онлайн-показ доступен, что экономит время и позволяет предварительно оценить объект.  Готова ответить на вопросы и организовать просмотр в удобное время. - Оперативно покажу объект и отвечу на все вопросы! Не ждите повышения цен!
Описание дома
Этажность дома 2
Объявление № 23311660
Дата подачи:
6 октября 2025 г. 7:16
Дата обновления:
7 марта 2026 г. 11:00
Просмотров 34 Хотите продать быстрее?

Продавец
Агентство недвижимости:
Снежана Юрьевна
email: 89788576627@chersonese.ru
Показать номер телефона
Пожаловаться
Комментарии:
Добавить