Продажа Однокомнатная квартиры, Курганная, 31, посёлок городского типа Гвардейское

Однокомнатная квартира по ул. Курганная, 31 посёлок городского типа Гвардейское
Город посёлок городского типа Гвардейское
Цена 6 300 000 р. (175 929 р./м2)
Подать заявку на ипотеку
Район Гвардейское сельское поселение
Адрес Курганная, 31
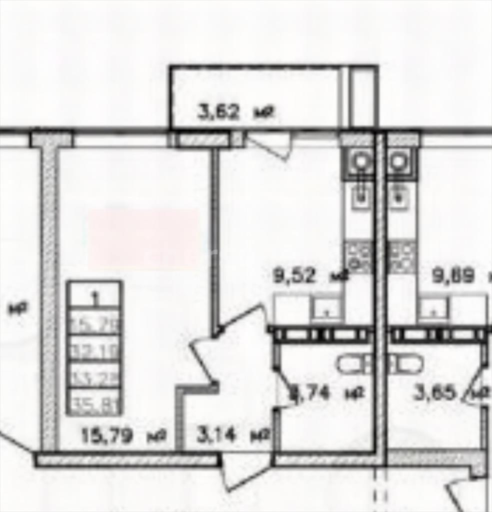
Этаж 5/8
Площадь общая 35,81 м2, жилая 15,79 м2, кухни 9,52 м2
Кол-во комнат Однокомнатная
Общие характеристики ️ Однокомнатная квартира общей площадью 35,81 м² располагается на 5-м этаже 8-этажного монолитного дома. Комната изолированная, кухня 9,52 м², жилая зона 15,79 м². Высота потолков 2,8 м, окна выходят на улицу, что обеспечивает естественное освещение и просторное ощущение. Есть балкон, который можно обустроить для утреннего кофе и вечерних посиделок. Планировка и ремонт ✨ Изолированная планировка комнаты, компактная кухня, удобно распланированное пространство. Ремонт выполнен в стильном евроремонте, отделочные материалы современные и практичные.  Комфорт и коммуникации Санузел совмещённый, система отопления — АГВ. Потолки 2,8 м создают ощущение свежести и свободы. Монолитные стены обеспечивают хорошую тепло- и шумоизоляцию. Лифт пассажирский, в квартире есть балкон, окна выходят на улицу. Дом и инфраструктура Новый дом городской застройки, монолитная конструкция. Открытая парковка во дворе. Подъезды удобные, двор тихий, инфраструктура района развита для повседневного комфорта.Рядом с домом находится остановка общественного транспрорта, новый детский сад. Условия сделки и просмотр Возможна ипотека. Онлайн просмотр объекта можно организовать по предварительной договоренности — удобно для занятых клиентов. Оперативно согласуем удобное время просмотра и обсудим все детали покупки. ‍♂️ Преимущества района и комфорт проживания дополняют привлекательность этого варианта: развитая транспортная доступность, близость инфраструктуры, тихий двор и современная планировка.  Оперативно покажу объект и отвечу на все вопросы!
Описание дома
Этажность дома 8
Объявление № 23352112
Дата подачи:
10 октября 2025 г. 6:17
Дата обновления:
19 ноября 2025 г. 14:03
Просмотров 15 Хотите продать быстрее?

Продавец
Агентство недвижимости:
Альбина Борисовна
email: 89788578220@chersonese.ru
Показать номер телефона
Пожаловаться
Комментарии:
Добавить