Продажа Двухкомнатная квартиры, Октябрьской Революции проспект, 52А, Севастополь

Двухкомнатная квартира по ул. Октябрьской Революции проспект, 52А Севастополь
Город Севастополь
Цена 7 299 000 р. (135 922 р./м2)
Подать заявку на ипотеку
Район Гагаринский
Адрес Октябрьской Революции проспект, 52А
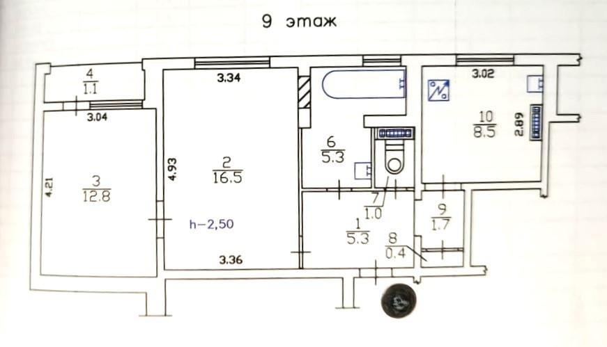
Этаж 9/9
Площадь общая 53,7 м2, жилая 30 м2, кухни 8 м2
Кол-во комнат Двухкомнатная
Предлагаем двухкомнатную квартиру с идеальной локацией! Дом 1981 года постройки, чистый подъезд, современный лифт, ухоженный двор с детской площадкой и цветами. Есть чердак.  В квартире просторная квадратная кухня, большой коридор, ниша для шкафа, санузел раздельный, большая ванная комната с окном, комнаты смежные. Квартира под ремонт.  Отличная локация, в пешей доступности от дома вся необходимая инфраструктура, торговые центры, детские сады, школы, всё, что душа пожелает!  Полное юридическое сопровождение сделки до получения ключей. Звоните! Организуем показ, ответим на все вопросы.
Описание дома
Этажность дома 9
Объявление № 23042243
Дата подачи:
26 июля 2025 г. 10:08
Дата обновления:
24 ноября 2025 г. 13:03
Просмотров 27 Хотите продать быстрее?

Продавец
Агентство недвижимости:
Ольга Владимировна
email: 89788578144@chersonese.ru
Показать номер телефона
Пожаловаться
Комментарии:
Добавить