Продажа Однокомнатная квартиры, поселок городского типа Приморский, Керченская улица,1, Крым

Однокомнатная квартира по ул. поселок городского типа Приморский, Керченская улица,1 Крым
Город Крым
Цена 8 495 550 р. (203 000 р./м2)
Подать заявку на ипотеку
Адрес поселок городского типа Приморский, Керченская улица,1
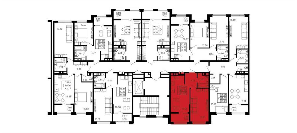
Этаж 3/9
Площадь общая 41,85 м2, жилая 15,81 м2, кухни 16,58 м2
Кол-во комнат Однокомнатная
Продается 1-комн. квартира, площадью 41.85 м2 в монолитно-кирпичной новостройке. Возможен вариант покупки с использованием ипотечных средств, есть рассрочка, возможна покупка с использованием материнского капитала, есть военная ипотека. Жилая площадь 15.81 м2, кухня 16.58 м2, черновая отделка, комнаты изолированные. Квартира располагается на 3 этаже 9-этажного дома в ЖК Просторы Крыма. Застройщик - СЗ Просторы Крыма. Обеспечение безопасности: видеонаблюдение, круглосуточная охрана. Инфраструктура: детский сад, детские площадки, спортивные площадки, места для отдыха. Просторы Крыма - образец современного продуманного подхода к созданию жилого пространства. Дома ЖИЛОГО КВАРТАЛА имеют исключительные виды на акваторию Черного Моря. Особой ценностью является местоположение проекта: близ Керченского пролива - излюбленная локация крымчан и гостей с материка. Здесь одновременно будет уживаться большое количество объектов как современной, так и традиционной культуры. 1 минута до школы и детских садов 15 минут до центральных объектов 10 минут до Чёрного моря 20 минут до Феодосии Позвоните и узнайте условия покупки прямо сейчас!
Описание дома
Этажность дома 9
Объявление № 23195003
Дата подачи:
26 августа 2025 г. 8:10
Дата обновления:
26 августа 2025 г. 7:39
Просмотров 29 Хотите продать быстрее?

Продавец
Отдел продаж
Показать номер телефона
Пожаловаться
Комментарии:
Добавить