Трехкомнатная квартира в новостройке 118,76 м2 по ул. Мате Залки 86 за 21376800 руб.

Адрес
Город Севастополь
Район Балаклавский
Адрес Мате Залки, 86
Описание
Цена 21 376 800 р. (180 000 р./м2)
Подать заявку на ипотеку
Количество комнат Трехкомнатная
Этаж 1
Этажность дома 9
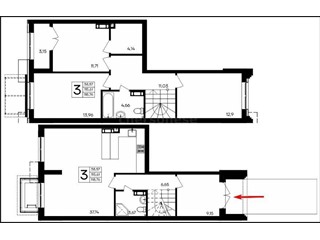
Общая S, м2 118,76
Жилая S, м2 0,00
S кухни, м2 37,74
Жилой комплекс "Семисчастье" в Севастополе - идеальное место для вашего комфортного проживания на берегу Черного моря. Расположенный в живописном районе города, он предлагает широкий выбор квартир различной планировки и ценовой категории. Уютные квартиры с видом на море и горы, современная инфраструктура, благоустроенная территория - все это делает "Семисчастье" идеальным выбором для тех, кто ценит комфорт и качество. Звоните, чтобы узнать больше о наших предложениях и стать одним из счастливых обладателей квартиры в жилом комплексе "Семисчастье". В продаже имеются квартиры в жилом комплексе "Семисчастье" премиум-класса. Общая площадь составляет 118.761 кв.м., при этом кухня - 37.74 кв.м. Высота потолков достигает 2,7 м. Полная сумма в договоре, прямая продажа! Семейная ипотека и материнский капитал! Без комиссии, все оплачивает застройщик! Если покупаете через нашу компанию, осуществляем приёмку квартиры! ❌ С агентствами не сотрудничаем, просьба не звонить!
Квартира в новостройке Севастополь
Дата 10.11.2025 3:08:19
Объявление № 23585811
Дата подачи:
10 ноября 2025 г. 3:08
Дата обновления:
10 ноября 2025 г. 3:08
Просмотров 16 Хотите продать быстрее?

Продавец
Агентство недвижимости:
Топ-менеджер
email: chersonese@inbox.ru
Показать номер телефона
Пожаловаться
Комментарии:
Добавить