Двухкомнатная квартира в новостройке 62,16 м2 по ул. Мате Залки 86 за 13053600 руб.

Адрес
Город Севастополь
Район Балаклавский
Адрес Мате Залки, 86
Описание
Цена 13 053 600 р. (210 000 р./м2)
Подать заявку на ипотеку
Количество комнат Двухкомнатная
Этаж 2
Этажность дома 9
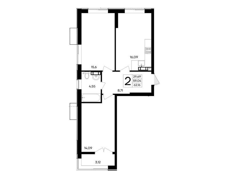
Общая S, м2 62,16
Жилая S, м2 0,00
S кухни, м2 16,09
Жилой комплекс "Семисчастье" в Севастополе - идеальное место для вашего комфортного проживания на берегу Черного моря. Расположенный в живописном районе города, он предлагает широкий выбор квартир различной планировки и ценовой категории. Уютные квартиры с видом на море и горы, современная инфраструктура, благоустроенная территория - все это делает "Семисчастье" идеальным выбором для тех, кто ценит комфорт и качество. Звоните, чтобы узнать больше о наших предложениях и стать одним из счастливых обладателей квартиры в жилом комплексе "Семисчастье". В продаже имеются квартиры в жилом комплексе "Семисчастье" премиум-класса. Общая площадь составляет 62,161 кв.м., при этом кухня - 16,09 кв.м. Высота потолков достигает 2,7 м. Полная сумма в договоре, прямая продажа! Семейная ипотека и материнский капитал! Без комиссии, все оплачивает застройщик! Если покупаете через нашу компанию, осуществляем приёмку квартиры! ❌ С агентствами не сотрудничаем, просьба не звонить!
Квартира в новостройке Севастополь
Дата 08.11.2025 2:26:31
Объявление № 23573904
Дата подачи:
8 ноября 2025 г. 2:26
Дата обновления:
8 ноября 2025 г. 2:26
Просмотров 16 Хотите продать быстрее?

Продавец
Агентство недвижимости:
Топ-менеджер
email: chersonese@inbox.ru
Показать номер телефона
Пожаловаться
Комментарии:
Добавить