квартира в новостройке 30,38 м2 по ул. шоссе Качинское 31Д за 9114000 руб.

Адрес
Город село Орловка
Район Нахимовский
Адрес шоссе Качинское, 31Д
Описание
Цена 9 114 000 р. (300 000 р./м2)
Подать заявку на ипотеку
Этаж 2
Этажность дома 4
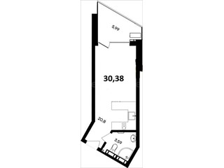
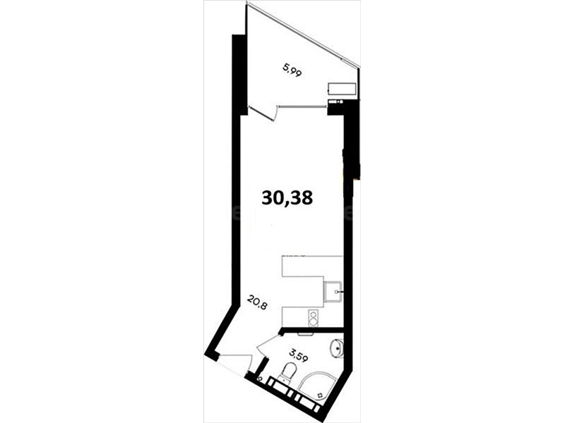
Общая S, м2 30,38
Жилая S, м2 0,00
S кухни, м2 20,80
На западном побережье Севастополя, в селе Орловка, расположен апарт-комплекс «Песок и море». Этот современный объект создан для удобной жизни и построен из высококачественных строительных материалов, обеспечивающих тепло- и звукоизоляцию. В комплексе представлены разнообразные варианты планировок, а апартаменты предлагаются без внутренней отделки, что дает возможность жильцам воплотить свои дизайнерские идеи. На территории комплекса более трех километров золотистого песка и прозрачное море с шириной более 30 метров. В продаже имеются студио-апартаменты с отделкой в жилом комплексе "Песок и море" премиум-класса. Общая площадь составляет 30,381 кв.м., при этом кухня занимает 20,8 кв.м. Все окна выходят на одну сторону. В квартире есть лоджия и санузел. Высота потолков достигает 2.7 м. Полная сумма в договоре, прямая продажа! Без комиссии, все оплачивает застройщик! Если покупаете через нашу компанию, осуществляем       приёмку квартиры! ❌ С агентствами не сотрудничаем, просьба не звонить!
Квартира в новостройке село Орловка
Дата 29.01.2026 0:32:15
Объявление № 23883506
Дата подачи:
29 января 2026 г. 0:32
Дата обновления:
29 января 2026 г. 0:32
Просмотров 12 Хотите продать быстрее?

Продавец
Агентство недвижимости:
Менеджер
email: chersonese@inbox.ru
Показать номер телефона
Пожаловаться
Комментарии:
Добавить