квартира в новостройке 30,38 м2 по ул. шоссе Качинское 31Д за 6683600 руб.

Адрес
Город село Орловка
Район Нахимовский
Адрес шоссе Качинское, 31Д
Описание
Цена 6 683 600 р. (220 000 р./м2)
Подать заявку на ипотеку
Этаж 2
Этажность дома 4
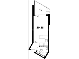
Общая S, м2 30,38
Жилая S, м2 0,00
S кухни, м2 20,80
На западном побережье Севастополя, в селе Орловка, расположен апарт-комплекс «Песок и море». Этот современный объект создан для удобной жизни и построен из высококачественных строительных материалов, обеспечивающих тепло- и звукоизоляцию. В комплексе представлены разнообразные варианты планировок, а апартаменты предлагаются без внутренней отделки, что дает возможность жильцам воплотить свои дизайнерские идеи. На территории комплекса более трех километров золотистого песка и прозрачное море с шириной более 30 метров. В продаже имеются студио-апартаменты с отделкой в жилом комплексе "Песок и море" премиум-класса. Общая площадь составляет 30,38 кв.м., при этом жилая зона с кухней занимает 20,8 кв.м. Все окна выходят на одну сторону. В квартире есть лоджия и санузел. Высота потолков достигает 2.7 м. Полная сумма в договоре, прямая продажа! Без комиссии, все оплачивает застройщик! ❌ С агентствами не сотрудничаем, просьба не звонить!
Квартира в новостройке село Орловка
Дата 08.10.2025 6:49:22
Объявление № 23330136
Дата подачи:
8 октября 2025 г. 6:49
Дата обновления:
8 октября 2025 г. 6:49
Просмотров 4 Хотите продать быстрее?

Продавец
Агентство недвижимости:
Топ-менеджер
email: chersonese@inbox.ru
Показать номер телефона
Пожаловаться
Комментарии:
Добавить